

锦绣阳光十期锦绣名居 别墅!全新别墅,看上可谈!

通便利,空气新鲜,生活配套齐全,性价比高,小区绿化好,户型好,物业管理不错,住家选,孩子就读方便,离学校近,交通便利,生活配套齐全

预约看房

人预约

加入对比

550
19298元/㎡
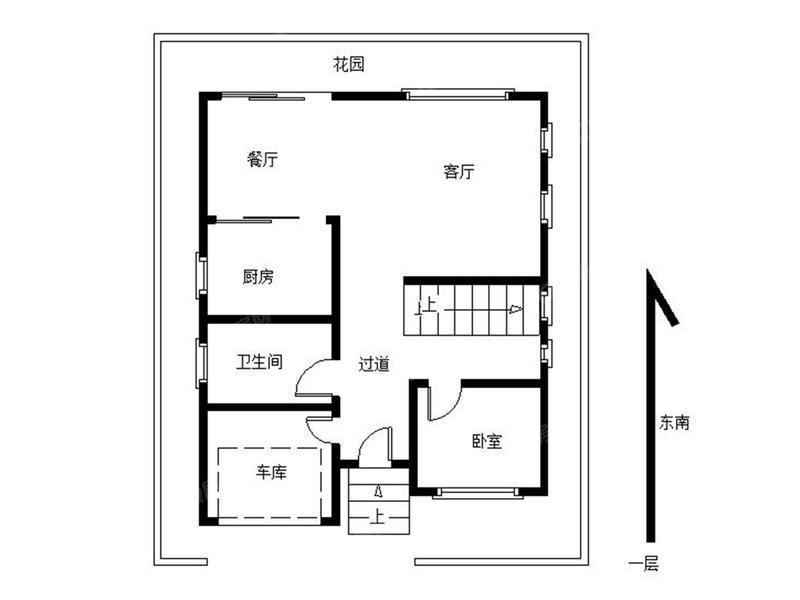
  • 6 室2厅

    共3层
  • 285㎡

    毛坯
  • 东南

    2006年-2014年建

黄俊庭_Q房网

黄俊庭

Q房网

微信扫码拨号

公司名称 江门市大数云房房地产经纪有限公司骏景花园分公司

信用代码 91440703MA55EKXR2P

真实房源 线上浏览 线下体验

房源信息
基本属性
  • 房屋户型
    6 室2厅1厨5卫
  • 所在楼层
    共3层
  • 建筑面积
    285㎡
  • 户型结构
    复式
  • 房屋朝向
    东南
  • 装修情况
    毛坯
  • 配备电梯
    有电梯
交易属性
  • 房屋用途
    别墅
  • 上次交易
    暂无数据
  • 房屋年限
    满五年
  • 建筑年代
    2006-2014
  • 抵押信息
    抵押
  • 房本备件
    暂无数据
  • 挂牌时间
    2019-11-13
  • 房源编码
    ZHZS14070045
*以上基本属性和交易属性信息仅供参考,购房时以房产证/不动产证信息为准
房源点评
  • 房源标签

    满五年 车位充足 周边学校 电梯

  • 房源卖点

    通便利,空气新鲜,生活配套齐全,性价比高,小区绿化好,户型好,物业管理不错,住家选,孩子就读方便,离学校近,交通便利,生活配套齐全

  • 布局装修

    格局方正,有两个天台,方便主人聚会交友

  • 交通出行

    附近公交车有以下: 42路-686路-991路-992路-993路

  • 周边配套

    周围有华润万家,比高影院,坦洲医院 ,敏捷幼儿园,坦洲中学,金斗湾客源站

查看更多房评

小区信息

锦绣阳光十期锦绣名居

统计数据

  • 7

    小区在售数
  • 0

    小区在租数
  • 0元/平米

    本小区10月参考均价
  • 0元/平米

    本小区10月挂牌均价

二手房均价根据我司报盘、成交等数据进行评估,仅供参考

小区问答
Q房网
热心网友
下面是Q房网现在在售二手房价格,仅供参考: 锦绣阳光十期锦绣名居 稀有独栋别墅 豪华毛坯可自行装修 带私家花园 7室2厅、298平米、毛坯、共3层、西南、2008年建 坦洲-坦洲二手房-锦绣阳光十期锦绣名居 中山市坦洲镇林东小学,满两年,房本在手,电梯。 536万 17987元/平米 锦绣阳光十期锦绣名居 独栋毛坯别墅285平 6室2厅1厨5卫,业主诚心出 6室2厅、285平米、毛坯、共3层、东南、2008年建 坦洲-坦洲二手房-锦绣阳光十期锦绣名居 中山市坦洲镇林东小学,满五年,电梯。 550万 19298元/平米
2020-06-01
我要提问
周边配套

路线 周边

正在搜索中...

交通 学校 医疗 商超 生活 其他

公交 驾车 步行

周边

查路线

  • 输入起点

  • 输入终点

没有查到相关路线

换个地址试试吧

正在搜索中...

请选择准确的起点或终点

推荐二手房
免责声明:本房源展示信息来源于业主介绍、房产证、实勘、政府官网等渠道,信息仅供参考,不作为合同条款,不具有合同约束力。交易时请以该房源的档案登记信息、产权证信息以及所签订合同条款约定为准。

有没有购房资格

一测便知

请选择你要测试的城市?

城市 中山

  • 对比栏 3
  • 最近浏览
最多可选中3套房源进行对比

每次同时只能对比三个房源,如仍需要对比,则请删除其中的一个房源

加入对比

一键预约,您的专属服务

真实 及时 保密

预约已提交工作人员将会尽快与您联系,请保持手机畅通
可通过本手机号登录查看预约进度

查看预约进度 继续找房

发送到手机

发送本楼盘"锦绣阳光十期锦绣名居"的信息到我的手机

您将会收到如下信息:

Q房房源,以下是您点播的信息:https://m.qfang.com/zhongshan/sale/500468499, 本信息由 黄俊庭 发布,

联系电话{phone}

转发至微信

微信扫描二维码,转发给微信好友(朋友圈)

意见
意见

您拨打号码异常的原因是:(必填)

请选择异常原因

情况说明:(选填)

最少15个字

验证码不正确

确定提交

今天您已经给我们十条反馈,我们会尽快排查解决。
关闭
x

收起

按Enter发送消息 按Shift+Enter发送消息

    下载Q房App更加便捷查看房源

    确定要关闭吗,你将查看不到聊天记录哦~

    取消 确定